For Sale販売物件

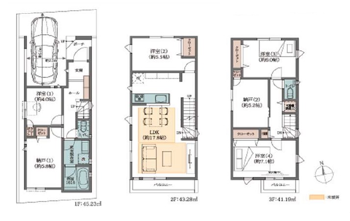
中古一戸建 中区本牧原 中古戸建 4LDK+2S 6,980万円(税込)

リビングに床暖房を完備

Point

■リビング床暖房
■対面式キッチン
■各居室に収納を完備

物件種別 中古一戸建
所在地 横浜市中区本牧原
価格 6,980万円(税込)
交通 みなとみらい線「元町・中華街」駅 バス14分
 バス停「本牧原」 徒歩2分
土地面積 68.44㎡
建物面積 129.70㎡(車庫・バルコニー面積を含む)
バルコニー・向き 南向き
間取 4LDK+2S
構造・階数 木造3階建
権利形態 所有権
地目 宅地
用途地域 近隣商業地域
建ぺい率 80%
容積率 300%
都市計画 市街化区域
地域・法令等 準防火地域、第6種高度地区
接道 北側 幅員 約5.9mの公道
建築年月 2024年9月
設備 公営水道・公共下水・都市ガス
備考 ※図面と現況が異なる場合、現況を優先します。
現況 完成済
引渡し 相談
取引態様 仲介
TOP