For Sale販売物件
新築一戸建 中区上野町 新築戸建 4LDK 6,780万円(税込)
山手駅まで平坦アクセス
| 物件種別 | 新築一戸建 |
|---|---|
| 所在地 | 横浜市中区上野町 |
| 価格 | 6,780万円(税込) |
| 交通 | 京浜東北線「山手」駅 徒歩8分 |
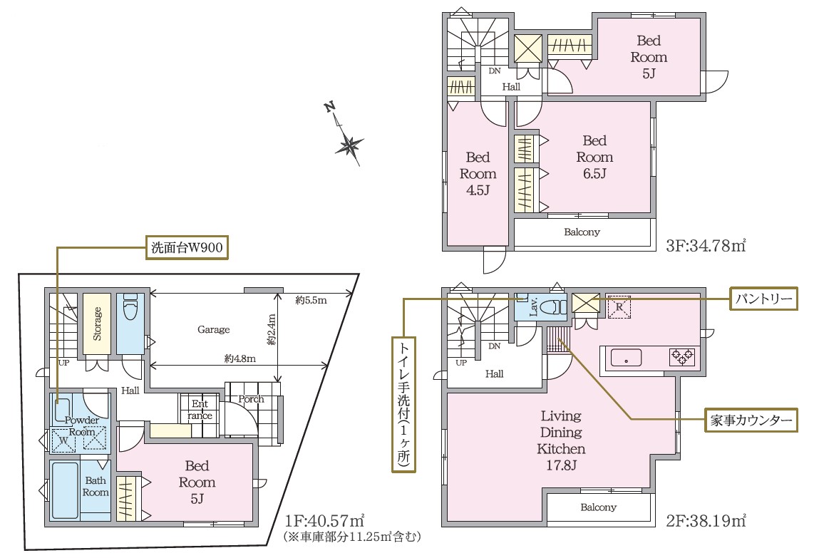
| 土地面積 | 59.05㎡ |
| 建物面積 | 102.29㎡(車庫面積:11.25㎡ 除く) |
| バルコニー・向き | 南西向き |
| 間取 | 4LDK |
| 構造・階数 | 木造3階建 |
| 権利形態 | 所有権 |
| 地目 | 宅地 |
| 用途地域 | 第一種住居専用地域 |
| 建ぺい率 | 60% |
| 容積率 | 200% |
| 都市計画 | 市街化区域 |
| 地域・法令等 | 準防火地域、第4種高度地区 |
| 接道 | 南東側 幅員 約5.9mの公道、南西側 幅員 約5.5mの公道 |
| 建築年月 | 2025年10月 |
| 設備 | 公営水道・公共下水・都市ガス |
| 備考 | ※図面と現況が異なる場合、現況を優先します。 |
| 現況 | 完成済 |
| 引渡し | 相談 |
| 取引態様 | 仲介 |



















Point
■床暖房
■システムキッチン
■ビルドイン食洗機
■浴室乾燥機
■オートバス