For Sale販売物件
中古一戸建 中区竹之丸 中古戸建 4LDK 8,280万円(税込)
ランドマークタワーを望む高台に立地
| 物件種別 | 中古一戸建 |
|---|---|
| 所在地 | 横浜市中区竹之丸 |
| 価格 | 8,280万円(税込) |
| 交通 | 京浜東北線「山手」駅 徒歩7分 |
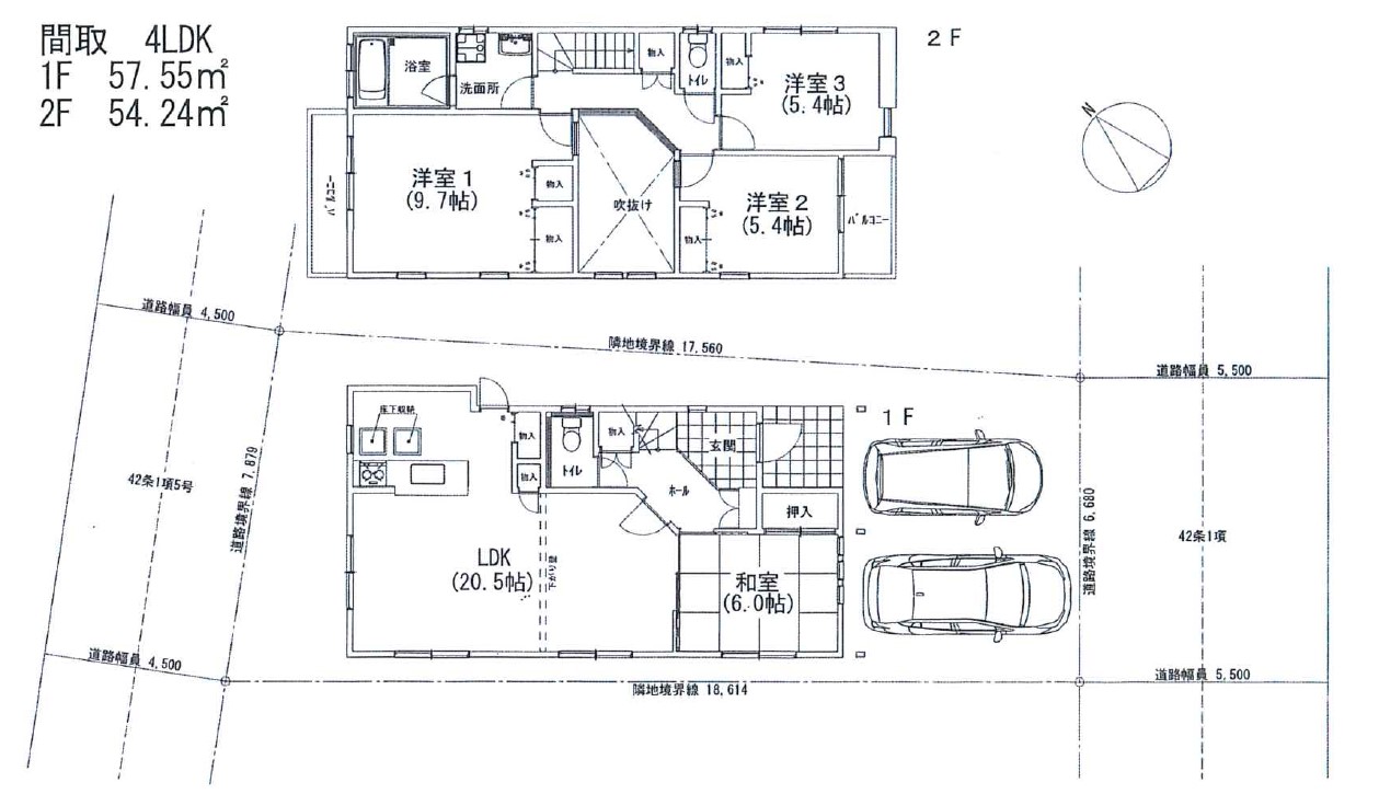
| 土地面積 | 131.15㎡ |
| 建物面積 | 111.79㎡ |
| バルコニー・向き | 南東向き |
| 間取 | 4LDK |
| 構造・階数 | 木造2階建 |
| 権利形態 | 所有権 |
| 地目 | 宅地 |
| 用途地域 | 第一種低層住居専用地域 |
| 建ぺい率 | 50% |
| 容積率 | 100% |
| 都市計画 | 市街化区域 |
| 地域・法令等 | 準防火地域、第1種高度地区 |
| 接道 | 南東側 幅員 約5.5mの公道、北西側 幅員 約4.5mの私道 |
| 駐車場 | 2台分(車種による) |
| 建築年月 | 2007年10月 |
| 設備 | 公営水道・公共下水・都市ガス |
| 備考 | ※図面と現況が異なる場合、現況を優先します。 |
| 現況 | 空室 |
| 引渡し | 相談 |
| 取引態様 | 仲介 |
















Point
■リビング吹抜け
■温水式床暖房
■LDK20.5帖
<2025年8月 一部リフォーム・設備交換>
クロス貼替(壁天井)、給湯器(ガス温水暖房(床暖)付き)
ビルドイン食洗機、キッチン水栓、浴室乾燥機
和室畳表替え、リビングドア、エアコン3台